IGE
IGE  空间设计
浏览人数     167890
项目面积  1238

服务内容 | SERVICE
硬装 | 天使眼空间设计
软装 | 天使眼空间设计
风格 | 现代 | 简约 | 环保
摄影  天使眼摄影  杨明义

完成日期  CREATION
2018年7月

▽ 执行效果展示

 

  

  

 

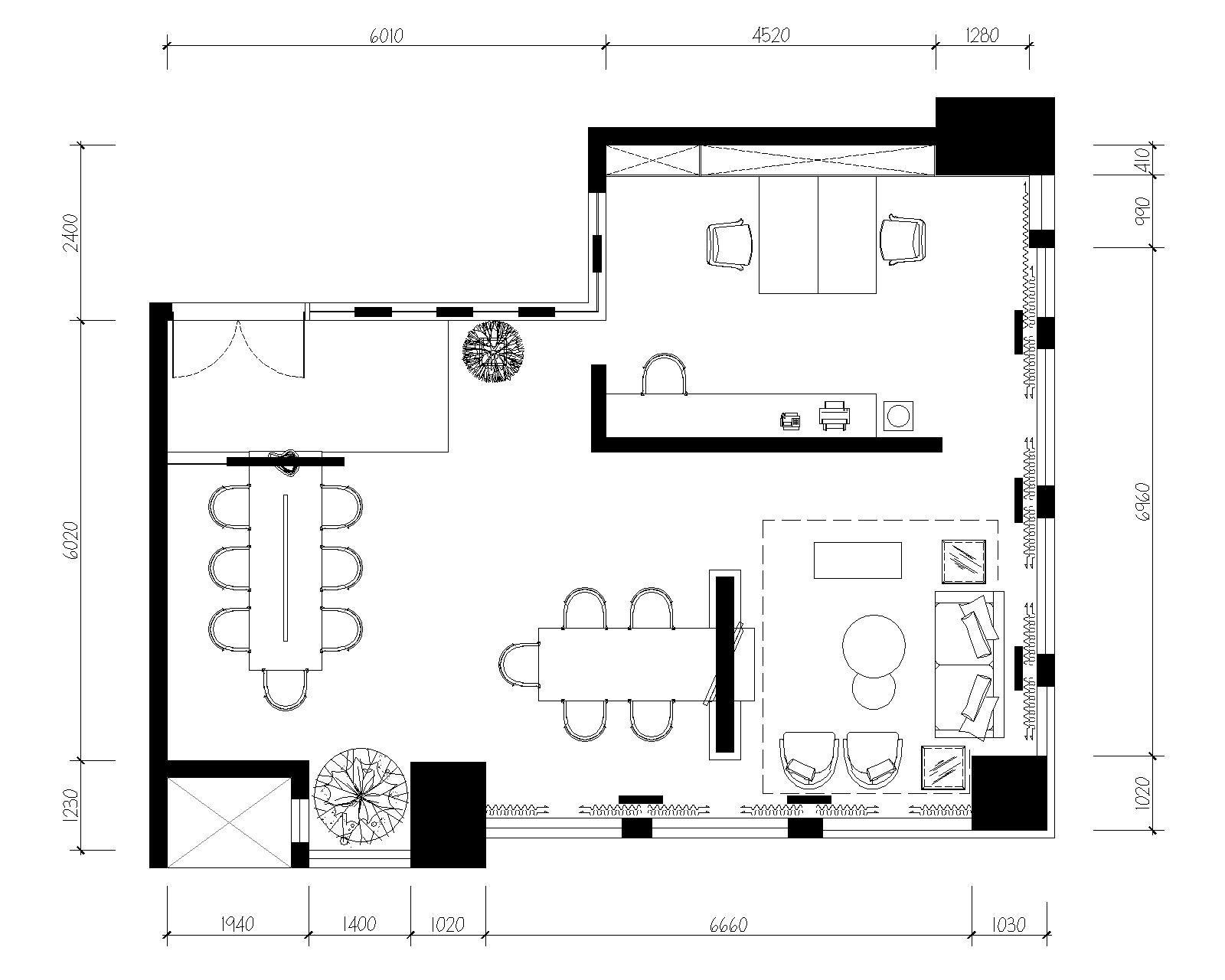
一个80平米的
写字楼办公空间
以素雅 写意为基调
全开放式空间
利用不同形式的隔断
划分出多个场景
使之相对独立
但在动线及视线上
又相对灵活互动

 

 

 

 


| 相关案例 |

BRAND CASE

——